当前位置:首页>政务公开>政府信息公开目录>规划信息>规划计划

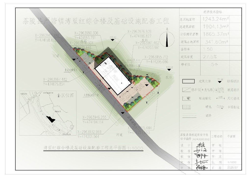
茶陵县严塘镇湾里红综合楼及基础设施配套工程项目规划方案公示

来源:茶陵县自然资源局 作者:办公室 发布时间:2025-08-15  访问量:次 【字体大小:

该项目规划总平面图我局已初步审定,现予以公示。相邻单位及个人对此方案如有异议,请在7日内以书面形式向我局提出,逾期不提出异议,我局将依法予以行政许可。

受理部门:城乡规划管理股

联系电话:0731-25223819

 

附件:

1.茶陵县严塘镇湾里红综合楼及基础设施配套工程总平图

2.茶陵县严塘镇湾里红综合楼及基础设施配套工程效果图

3.茶陵县严塘镇湾里红综合楼及基础设施配套工程鸟瞰图


 

茶陵县自然资源局

2025年8月15日