当前位置:首页>政务公开>政府信息公开目录>规划信息>规划计划
来源:茶陵县自然资源局 作者:办公室 发布时间:2025-09-04 访问量:次 【字体大小:大中小】
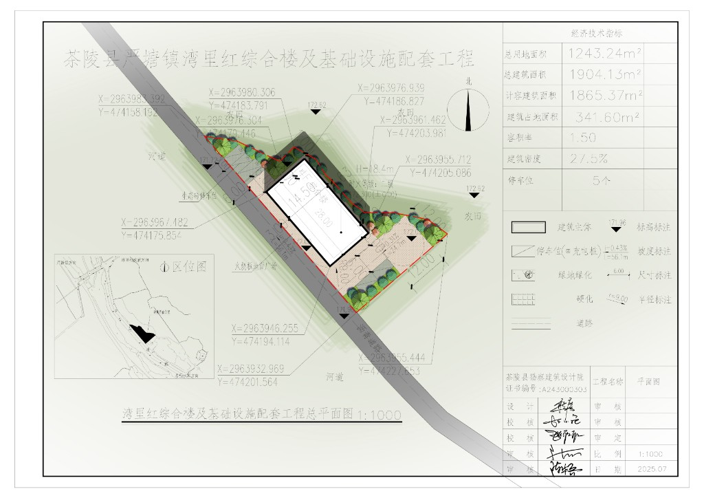
建设项目基本情况
乡村建设规划许可证编号:乡字第4302242025XG0593553号
建设项目名称:茶陵县严塘镇湾里红综合楼及基础设施配套工程
建设单位名称:茶陵县严塘镇湾里村村民委员会
建设项目位置:茶陵县严塘镇湾里村7至8组
建设用地性质:公共管理与公共服务用地
主要规划技术指标
建设规模:1904.13平方米
附注
1.下图为鸟瞰图、总平面图,具体以《乡村建设规划许可证》附件为准。
2.公告内容查询网址:http://www.chaling.gov.cn/c25826/20250815/i2410489.html

